полная версияПолная версия
Концерт Патриции Каас. 5. Жизнь продолжается. Недалеко от Москвы, продолжение
– Туалеты – индивидуально, а баньку обязательно общую!
– Пятнадцать и два по семь с половиной. Наверное, так будет правильно.
Свиридов молча поглядывал на говорящих, и те постепенно обратили внимание на него.
– Участка пока еще нет, и делить нечего. Но зато все высказались за неразрывность семейных уз поколений. А там следующее поколение подрастет …
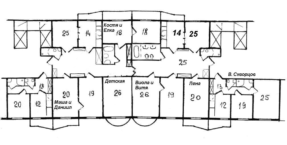
И Свиридов расстелил на столе лист синьки, в котором легко было узнать поэтажный план дома. На синьке карандашом были внесены исправления.
Сперва все нашли свою квартиру, но она оказалась немного подправленной. Но самое главное, она соединялась с точно такой же квартирой из другого подъезда.

Новая квартира Скворцовых.
Кроме площади комнат еле заметным карандашом были сделаны надписи и все стали разбирать их.
– Толя, ты поясни им. А то они еще долго будут блуждать в этом лабиринте, – засмеялась Тоня.
– Из чего я делаю вывод, что наша милая Тонечка принимала живейшее участие в этом чертеже!
Виктор, казалось, быстрее всех понял как идею расстеленного на столе плана, так и назначение комнат. Его квартирка оставалась по-прежнему обособленной.
– Ну, дядя Толя, ты даешь! Значит, вот эти комнаты – наши, да?
– Эти комнаты предназначены для семьи Дубининых с их детьми. Вот эти – для семьи Кости Скворцова с детьми. Здесь есть своя кухня, своя столовая, и туалетные комнаты, но еще есть общая детская игровая комната для всех маленьких детей. Вот комнаты для Виолетты с детьми, вот комната Лены, и тут, в этой части квартиры большая столовая для всей семьи и большая туалетная комната с джакузи и всем прочим.
– Но у Кости с Елочкой площадь меньше!
– Дан, не выступай! Если захочешь, поменяемся!
– А по общему коридору можно устраивать велосипедные гонки …
Все склонились над чертежом и продолжили обсуждение.
Лена переживала предстоящее переселение. Она уже привыкла к некой изолированности от остальной квартиры.
Виолетта планировала поменять функциональное назначение комнат – в меньшей устроить свою спальню, а в большей – детскую.
– А если устроить еще одну дверь вот здесь …
– И здесь – тоже.
– Тогда можно будет детишкам перемещаться в общую игровую минуя коридор, правда?
– Толя, это лишь чертеж … А реально?
– Та квартира свободна, а прорезание дверей лазером наши строители освоили успешно – ты же видел дверь в мой кабинет …
ВИОЛЕТТА МОЕТ ГОЛОВУ ЕЛКЕ
Виолетта пощупала волосы у Елки.
– Пойдем, я тебе помою голову.
– Что вы, тетя Виола! Я сама помою!
– Идем, идем! Витенька, ты тут без нас не безобразничай, хорошо?
Витенька благожелательно отпустил женщин в ванну. Виолетта намочила волосы Елки, нанесла какой-то свой шампунь и стала массировать пальцами ее голову.
– Ой, как приятно, тетя Виола!
Потом происходила процедура мытья с нанесением еще какого-то геля и сушка с расчесыванием.
– Вот теперь твоя голова в порядке!
А вечером, целуя Елку, Костя обратил внимание на ее волосы.
– Ты голову помыла? Как приятно пахнет! И волосы такие мягкие и пушистые!
– Тебе нравится? Это тетя Виола мне голову помыла.
– Виола – чудесная женщина. Правда? Не называй ее тетей …
Виктор обратил внимание, что Костя стал Лену называть «мама Лена», или так же, как Маша – просто «мать». Но, как он заметил, Виолетту никто из детей по иному не называл. И Маша, и Костя называли Виолетту Виолой и на ты, причем называли очень мягко, ласково. Только Елка еще путалась, называя Виолетту то тетей Виолой, то просто Виолой.
Виктор чувствовал, что привязанности детей постепенно переходят к Виоле, и все меньше остается на долю Лены. Наверное, Лена тоже это чувствовала, но претензий Виолетте не предъявляла.
Но однажды Виктор случайно услышал, как Виолетта строго укоряла Машу, что та недостаточно ласкова с матерью, и Маша ее слушала и не огрызалась.
Тому, что Маша не огрызалась на замечание – Виктор подивился больше всего …
НА ТАНЦАХ
Теперь на танцы ходили тесной компанией – Гриша с Улей, Костя с Елкой, Маша с Даном. Иногда к ним присоединялись Катя и Олег – их приняли, и Катя танцевала со всеми кавалерами, отдавая предпочтение только Олегу.
Иногда на танцах появлялась Олимпиада, издали кивала Косте.
Обычно ее сопровождали парни с аэродрома, неодобрительно поглядывающие на Костю.
На этот раз они столкнулись в танце – Костя с Елкой и Олимпиада со своим кавалером.
– Ну, ты, любитель деревянных досок – не урони свою доску!
Он не ожидал такой мгновенной реакции – ему вывернул руку Костя, против двинувшихся к нему его товарищей встали Гриша и Дан.
– Тебе лучше не приходить сюда на танцы! Ты понял? – голос Дана был негромок, но весьма убедителен. И парни ретировались, даже забыв забрать с собой Олимпиаду, и той пришлось идти вслед за ними.
– Не переживай, Елка. Ты такая чудесная, – успокаивал Елку Гриша.
– К сожалении, хулиганы у нас еще не перевелись … Но больше они тебя не обидят, – мягко утешал ее Дан, а Маша вытирала Елке слезы.
– Неужели я похожа на доску? – со слезами спрашивала Елка ночью.
– Но ведь я люблю тебя! Или тебе важнее чье-то мнение?
– Все равно обидно …
– Не переживай. А морду набить нахалу мы всегда сумеем …
Олимпиада очень долго не появлялась на танцах, а когда появилась, то подошла к Лене.
– Лена, извини, – с видимым усилием сказала она, – Я ничего против тебя … Прости …
А тех парней на танцах больше не видели …
РЕБЕНОК
Лена плакала так тихо, что Виктор не сразу уловил это.
– Леночка, милая, что? Что случилось?
Он обнял Лену.
– Ничего не случилось, – помолчав ответила Лена. – Сейчас …
– А когда случилось?
– Давно … Прости меня … я так долго не понимала, что ты … что я … что это такое …
– Успокойся, – он гладил ее, стараясь успокоить.
Гладил так, как гладят плачущего близкого человека, но совсем не так, как гладят плачущую женщину, с которой только-что был близок. Лена почувствовала это.
– Я так долго не понимала, что это за счастье … когда я с тобой … мой любимый мужчина … Прости меня …
– Успокойся. Я тут, я с тобой …
Лена повернулась к Виктору и обняла его, прижалась.
– Милый мой … Спасибо тебе …
Она постепенно успокаивалась.
– Ты правда хочешь еще ребенка?
– Хочу.
– А от кого? От меня или от Виолы? Она моложе …
– А как считаешь ты? Ты сама хочешь ребенка?
– Я думала … Пыталась понять … В нашей сложной семье … Конечно, я смогу бросить работу – нет проблем … Сидеть дома, с детьми … С нашими детьми … Только Виола моложе, ей хочется ребенка, но еще ей хочется делать карьеру … Но я же смогу сидеть с ее ребенком … С нашим ребенком … Пусть рожает она, а дома буду сидеть я … Я буду хорошей няней, я постараюсь …
– Ты с Виолой не говорила на эту тему? Или вы не можете обсуждать это?
– Сможем. Мы уже примирились, по крайней мере я примирилась с тем, что у тебя теперь есть еще одна … любимая женщина. Мы не ссоримся с ней, а откровенно все выясняем …
РЕБЕНОК БУДЕТ у ВИОЛЫ
Через несколько дней вечером женщины позвали Виктора.
– Витя, мы обсудили и порешили … – начала Лена.
– Что вы обсудили?
– Мы обсудили проблему рождения еще одного ребенка, – твердо сказала Виола.
– Так. И что же вы решили?
– Мы с Виолой пришли к выводу, что рожать нужно ей.
– Мы с Леной договорились, что она не будет ревновать … И примет нашего ребенка как своего родного.
– Но разве он не будет родным? Виола!
– Витя, мы с Леной все откровенно обсудили, и пришли к выводу, что рожать лучше мне. А как ты думаешь?
– Я думаю, что вы у меня замечательные женщины! Обе прекрасны, обе матери, обе … Я без вас не смогу жить …
Лена и Виола обняли Виктора – каждая со своей стороны, расцеловали его в щеки, а потом по очереди крепко поцеловали в губы.
И сидели так, обняв его с двух сторон, и ощущая не только его, но и руки друг друга …
ИНСТИТУТ
БУКВОЙ «П»
Главное здание института в плане представлялось перевернутой буквой «П», обращенной перемычкой к проходной. Между этой перемычкой и проходной располагалась большая клумба на зеленом газоне, а к клумбе вели радиальные дорожки.
Клумба была настолько хороша и так благоухала, что многие сотрудники от проходной шли не прямо к главному зданию, а сворачивали к клумбе и задерживались около цветов.
От главного корпуса на уровне второго этажа вправо и влево отходили застекленные галереи. Левая галерея, если смотреть от проходной, изгибалась и уходила в двухэтажное здание медсанчасти, а правая, более короткая, вела в застекленный куб столовой.
А за столовой просматривался лес.
Внутри буквы «П» размещалось небольшое квадратное здание конференц-зала, тоже соединенное остекленным переходом с главным корпусом, а на крыше конференц-зала был устроен открытый бассейн. Когда-то этот бассейн использовали как емкость для воды, охлаждающей мощные компьютеры, но потом системы охлаждения стали другими, а бассейн остался.
В главном корпусе было много причуд, которые можно было отнести к фантазиям Свиридова, но к этим особенностям давно привыкли …
Например, шесть больших пассажирских лифтов – два из главного холла от парадного входа, два огромных грузовых в «ножках» буквы «П», свободно поднимающих фургон с грузом, и еще четыре небольших лифтов, на четверых человек. Два небольших лифта обслуживали книгохранилище библиотеки, размещенное в подземном этаже, один обслуживал дирекцию и еще один первый отдел. Около больших пассажирских лифтов находились лестницы – не аварийные, скромные, а широкие, светлые и удобные.
Количество подземных этажей главного корпуса мало кто знал, но там размещались экспериментальные установки с излучателями, надежно изолированные бетоном и землей от окружающей среды, многие вспомогательные установки и глубокий ввод железнодорожной ветки. По этой колее, ведущей на территорию машиностроительного завода, возили сырье, материалы, приборы и готовую продукцию, наработанную на экспериментальных установках.
Установки размещались под одним боковым крылом главного корпуса, а под другим крылом на этом этаже размещались некоторые кабинеты и помещения для камеральных работ. Здесь был кабинеты Виктора Скворцова и Виолетты Ерлыкиной, сидели сменные операторы и находились вторичные приборы с установок (но не все – полностью все данные уходили в лабораторный комплекс на втором и третьем этажах корпуса).
СТРОИТЕЛЬСТВО
Здание строили в очень сложных условиях и в очень сжатые сроки, и строили на месте неудачно заложенного совершенно другого корпуса.
Тогда Свиридов принял руководство стройкой после неудачного предшественника.
Ему удалось придумать совершенно уникальный подход к организации работ.
Выполнение всего комплекса строительных, монтажных и организационных работ в виде ограниченных военных учений с особыми полномочиями командующего этими учениями давало Свиридову возможности привлечения любых специалистов и исключения из обязательного перечня тех внешних ограничений и согласований, которые он считал лишними.
Это было важным преимуществом, позволяющим кардинально сокращать сроки выполнения работы, но это и накладывало чрезвычайно высокую ответственность за результаты.
Фундамент, уже частично возведенный и не учитывающий назначения и специфики создаваемой организации, взрывали направленными взрывами. Вверх летели фонтаны земли и бетона – таким образом не только освобождали место для нового фундамента, но и делали это новое место много обширнее и интереснее. И глубже …
Теперь мало кто помнил – пожалуй, кроме главного архитектора города – как происходило проектирование главного корпуса.
Мало того, что все это происходило вопреки всем существующим нормам по последовательности стадий проектирования и правилам их выполнения. Но вдобавок Свиридов организовал работу так, что проект пятиэтажного корпуса был выполнен за шесть дней. Над каждым этажом работала своя бригада проектировщиков, и каждая рабочая смена начиналась с эскизной проработки плана этажа рукой Свиридова. Потом бригада обсуждала и выполняла детальную проработку, и к концу недели для каждого этажа был готов полный комплект технической документации.
И все это происходило в просторных армейских палатках, на широченных столах из древесных плит. Вряд ли кто-нибудь поверит в это, глядя на просторные коридоры, систему лифтов, вентиляции и различных коммуникаций, своеобразную планировку производственных помещений и свободно разъезжающие по коридорам лабораторной части корпуса электрокары. Но все это сперва было нарисовано от руки самим Свиридовым, а уже затем приобретало вид законченного чертежа.
То, что было вырыто и забетонировано под корпусом, тоже было нарисовано от руки самим Свиридовым, и как это ни странно, за все эти годы еще ни разу не показалось необоснованным. Откуда он знал, что и как надо делать?
На этот вопрос ответа не было, но самое главное, этот вопрос никогда и ни у кого не возникал.
Так и с конференц-залом. Когда его проектировали, то возникали вопросы только «как это сделать», но не «зачем» и не «почему так».
Помещение конференц-зала было небольшим и уютным. Зал вмещал всего сто мест, вокруг зала располагались коридоры – как в хорошем театральном здании, и отдельные маленькие и большие комнаты. Здание конференц-зала не имело окон, зато было снабжено мощной системой экранирования, обеспечивающей полную недоступность внутренних помещений для электромагнитных волн и любого сканирования. Экранировка была такая, что человек, попадающий впервые внутрь, чувствовал удивительную тишину и спокойствие.
Со временем в подземных помещениях появились установки, сырье для которых и готовую продукцию транспортировали по длинному тоннелю, выходившему на поверхность далеко за корпусом электронщиков, а этот корпус располагался позади главного здания и почти сразу стал называться корпусом Авдоконихина.
Там, еще дальше, железнодорожная колея уходила через систему ворот к механическому заводу Дементьева. По этой ветке раз в неделю мотовоз тянул вагон с заготовками для дальнейшей работы завода, по этой ветке тот же мотовоз привозил вагоны с сырьем и оборудованием.
МАЛЫЙ СОВНАРКОМ
Название «малый совнарком» принадлежало Баранову, который так назвал узкую группу единомышленников, вместе со Свиридовым создававших институт с его тематикой, лабораториями и оборудованием. Тогда в эту группу входили – кроме самого Свиридова – все имеющиеся на тот момент телепаты, а он сам телепатом еще не был и даже не особенно догадывался об особых способностях своих коллег.
И ни разу за все годы они не дали почувствовать Свиридову, что он чем-то отличаются от них – до тех пор, когда он сам вдруг почувствовал способность общаться с ними мысленно.
А теперь он созвал «малый совнарком» и добавил в его состав Скворцова, Ерлыкину и Свиридову.
– Все, кого Толя хотел видеть, собрались – Полина Ерлыкина по привычке заняла место секретаря. – Витя, садись сюда.
И тут же вошел Свиридов и Тоня.
– Здравствуйте, друзья. Все собрались и представлять никого не надо. Все друг друга знают, все знают, кто чего стоит. У нас появились еще три человека, не владеющие мысленной речью – это Антонина Свиридова, Виолетта Ерлыкина и Виктор Скворцов. Их представлять не надо, а вот учитывать особенности их и нашего мышления – надо. Поэтому наши мысленные разговоры надо будет озвучивать для них достаточно полно…
– После знаменитого техсовета у нас с вами были еще разговоры, поэтому если и возвращаться к каким-то моментам, то … Это – не главное.
– А главное … Виктор Скворцов, пожалуй, наиболее полно знакомился с материалами прежних работ, и кое-что там нарыл. Поэтому его свидетельства будут очень ценны – для него все это было внове, а это воспринимается более ярко. Да плюс его система кодирования …
– Наша.
– Согласен – наша. Но придумал ее ты, и это все мы знаем. А меня сейчас занимает одна существенная … деталь …
И тут в комнату вошел Свиридов.
– Привет, ребята!
После длительной паузы все переглядывались и переводили взгляд с одного Свиридова на другого – один сидел во главе стола, а второй стоял у двери.
– Я еще не знаю, можно ли нам приближаться друг к другу … – сказал экземпляр номер два.
– Но потрогать того меня можно. – сказал экземпляр номер один и показал на экземпляр номер два. – Потапчик, дай ему руку.
Потапович, сидевший ближе всего к двери, растерянно протянул руку и коснулся руки того Свиридова, что стоял.
– У него рука теплая, – растерянно сообщил Потап, – И живая …
– Достаточно, – сказал экземпляр номер один и экземпляр номер два исчез. Как будто его выключили.
Все уставились на Свиридова и тут обратили внимание на крупные капли пота на его лице.
– Уф, устал. Такая материализация легко не дается …
– Может объяснишь?
– И это тоже, – Лена Карцева подняла и показала всем лист бумаги, где размашисто рукой Свиридова было написано «Еще не вечер!» – Надпись появилась только-что …
– Я попробую. Но по порядку. Для меня самого многое еще непонятно, поскольку все это связано лично со мной, то я пригласил Тоню – хочу, чтобы она была в курсе. А начать мне предстоит издалека …
ЧТО НАШЛИ ПОГИБШИЕ
– Помните, Виктор нашел в материалах наших погибших коллег упоминания о неизвестных материалах и мы кое-что воспроизвели? Оттуда появились новые боеприпасы и теперь специальная пистолетная пуля пробивает бортовую броню танка. Вес пули изменился незначительно – легкая оболочка и сверхтяжелый тонкий сердечник. И то, и другое – материалы нашего производства. Мало того, сердечник после проникновения сквозь броню может раскрываться как цветок и вызывать смертельные повреждения. Мы назвали этот эффект памяти «отложенной памятью», потому что она проявляется примерно через три – четыре секунды после нагрева, а нагрев в момент проникновения через броню составляет несколько тысяч градусов.
– Появились черные алмазы и черные бриллианты; голубые алмазы, похожие на колумбийские, и абсолютно бесцветные алмазы, не встречающиеся в природе и названные нами «алмазами чистой воды». Появился абсолютно черный – непрозрачный! – алмаз с полным световозвращением, названный нами «черная дыра».
– Воспроизвели фотохромный материал со временем срабатывания одна десятитысячная доля секунды и отдали венным – пусть думают, куда поставить. Воспроизвели «поющее стекло», генерирующее звуковые волны при освещении, и много чего другого. Но поняли в найденных записях далеко не все, а ведь там есть разгадки ко многим загадкам, которые унесли с собой наши предшественники …
– Как ты хорошо сказал – предшественники, – задумчиво сказал Лена Карцева, повторяя то, что она сказала мысленно.
– На месте той лаборатории осталась глубокая воронка и никаких остатков оборудования, что очень похоже на аннигиляционный взрыв. Неужели они нарвались на антиматерию?
– Если мне не изменяет память, то при той аварии полностью выгорела подстанция. Поэтому я не удивлюсь, если они вышли на что-то весьма энергоемкое, неожиданное, удивительное и страшное… У нас энергоемкость резко возрастает при раздевании атомов – чем больше заряд, тем выше затраты, – задумчиво произнес Потап.
– Посмотрим на совпадения. Примерно в этот момент времени произошли мутации у всех окружающих, мутации в структуре ДНК, малозаметные и не опасные. После этого было зафиксировано появление «любознательных» НЛО и, скорее всего, произошла первая локация объекта, что так же вызвало мутацию. Тоже малозаметную и не опасную. Могло ли излучение от аннигиляции вызвать мутацию? Интерес инопланетян?
– Вполне. Но проверки на остаточное излучение на месте взрыва проведено не было.
– По крайней мере это может быть тем самым фактором, который мы никак не можем найти. На самом деле первым по времени. Вторым является локационное излучение НЛО, зависшего над установкой …
– Над местом, где была установка…
– И только третьим по времени возникновения фактором было излучение, маскирующее всю территорию предприятия. И только оно давало устойчивую мутацию, от которой не рождались девочки.
– И у тех женщин, которые там работали хоть недолго, девочка живой родиться не может …
– А мальчик с особыми способностями? Или это не было связано с устойчивой мутацией?
– Видишь ли, Витя, получается, что мальчики с особыми способностями родились после взрыва, но только родившиеся в это время получили эти способности. Все, кто родился позже, причем у тех же матерей …
– Но отцы – другие. У них мутации не были выражены…
– Да, отцы были другие, – уточнил Виктор.– Кроме меня – у меня набор мутаций был полным, а мальчик – обыкновенный. Значит, наведенное или остаточное излучение после взрыва.
– А у тебя самого? Ты провел на той территории всего месяц до твоего перерождения.
– И была авария у наших соседей здесь, после чего я стал понимать мысленную речь. Видимо, там тоже было остаточное излучение.
– Ох, как бы было интересно получить от Свиридова детей!
– Полина, ты изверг! Разве так можно?
– Она права несмотря на всю чудовищность этой идеи – дети Свиридова, да еще от разных матерей, дали бы такой интересный материал для исследований!
– Но скорее всего они не дали бы ничего, кроме загадок …
– Постеснялись бы … Он же человек …
– Спасибо, Витя.
– Ты, Тонечка, не обижайся. Наука – она вообще штука бесчеловечная. А мы тебя все любим …
– Можно ли через столько лет обнаружить остаточное излучение аннигиляционного взрыва?
– Если только раскопать место взрыва …
– Но какую связь ты усматриваешь между теми событиями и твоим … раздвоением?
– Не исключено, что они вплотную приблизились к границе между этой реальностью и параллельными мирами. Или даже перешли эту границу …
Долгое молчание было ответом Свиридову. Но не мысленное.
– Слышали бы вы, что они вопят мысленно! – повернулся Свиридов к Тоне и Виктору. – Если кратко, то такой гвалт стоит … Но ничего стоящего, поэтому вы ничего не потеряли.
Громкий смех «мысленно вопящих» был ему ответом …
ПЕРЕРЫВ
– Толя, объяви перерыв. Нужно хоть немного отключиться и осмыслить.
– Перерыв. В соседней комнате есть кофеварка, кофе, печенье и даже коньячок.
– Коньячок – это самое оно, да с кофейком! А то и свихнуться недолго с этим Свиридовым!
– Я пошел варить кофе. Саша, рюмки в том шкафчике. – и Свиридов первым поднялся из-за стола.
Виктор предложил Тоне руку и так под руку они вышли из зала.
Соседняя комната была комнатой отдыха – между важными заседаниями здесь в мягких креслах можно было расслабиться и выпить чашечку кофе или рюмочку ликера.
Аромат свежемолотого кофе смешался с ароматом коньяка и никто и не подумал покидать уютные кресла и диван и уходить отсюда. Постепенно обмен мнениями возобновился.
– Толя, так что из сказанного тобой имеет отношение к твоему двойнику?
– Параллельные измерения существуют. Я там уже побывал. Но их, скорее всего, несколько, и они разные. Пока толком ничего сказать не могу …
Он помолчал.
– Попадая в другое измерение я получаю следующие возможности … Или способности, пока не ясно. Во-первых, наблюдать за событиями в том измерении, которое я покинул. Как говориться он лайн, то есть в обычном режиме, в режим реального времени. Во-вторых там, в другом измерении я получаю возможность двигаться по оси времени. Как – тоже пока не понял, но могу. И остановившись, точнее уравняв течение времени с соседним измерением, получаю возможность наблюдать за событиями в том измерении. Но только в прошлом. В-третьих, создавать в другом измерении своего двойника пока еще с неизвестными возможностями …
– То есть твое присутствие виртуальное и присутствие физическое – вещи разные?
– Совершено разные!
– Разве ты был в других измерениях?
– Это пока тоже не совсем понятно – могу ли я создавать своего двойника прямо тут, находясь с ним в одном измерении. Мой двойник, которого вы видели, был создан в другом измерении и оттуда перемещен в это измерение. Таким образом параллельное измерение как бы поддерживает способность создания двойника.
– А твои способности к телекинезу и телетранспортировке предметов?
– Леночка, все это пока неясно. И что реально может двойник – тоже непонятно. Но …
– Поскольку я сам не понимаю слишком многое из того, что произошло, вряд ли я смогу вам ответить на некоторые вопросы. Но в то время, когда я лежал в медсанчасти, мое сознание питалось сведениями из непонятного мне источника …











